byt 4+1 nebo větší, Ostrava, Moravská Ostrava, prodej

Prodáno
Adresa nemovitosti: 28. října 2075/143
prodej
k dispozici ihned

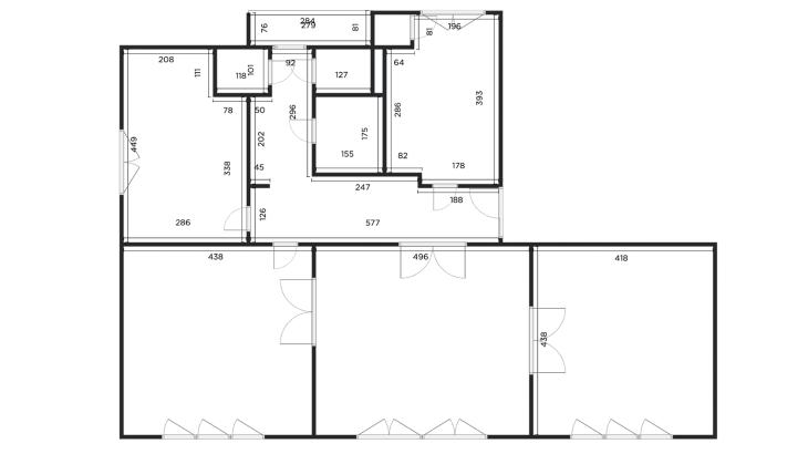
Nabízíme ke koupi prostorný byt 4+1 v osobním vlastnictví, který se nachází v žádané lokalitě na ulici 28. října v Ostravě – Moravské Ostravě.

Byt je ve 2. patře a je ideální volbou pro rodiny hledající komfortní a prostorné bydlení. Byt je v původním stavu, což vám dává možnost přizpůsobit si interiér podle vlastních představ a vkusu.

Byt má plastová okna, zateplení budovy a výměna výtahu je na základě zápisu z členské schůze vlastníků v řešení. Společenství vlastníků má kladný stav na účtu, dům není zatížen žádným úvěrem.

Pokoje jsou orientovány převážně do klidné dvorní části domu, ke které přiléhá pozemek, který je možno využít k relaxaci, posezení, umístění mobilních herních prvků pro děti.

Součástí bytu je také balkón, který je přístupný z chodby.

Chodba nabízí dostatek místa pro úložné prostory, včetně komory.

K bytu náleží také prostorný sklep, který je ideální pro uskladnění sezónních věcí nebo sportovního vybavení.

Tento byt je skvělou příležitostí pro ty, kteří chtějí investovat do nemovitosti v atraktivní lokalitě.

V nejbližším okolí se nachází sad Dr. Milady Horákové, nákupní centrum Futurum, mateřská a základní škola, rekonstruovaná Vila Grossmann a další objekty občanské vybavenosti.

Neváhejte a domluvte si prohlídku ještě dnes, abyste si mohli osobně vychutnat všechny výhody, které tento byt nabízí.

Energetická náročnost domu je klasifikována jako E.
Forma vlastnictví: v osobním vlastnictví
Nájem: 6.982,-Kč
Plocha [m2]: 104,77
Podlaží: 3.
Podlaží celkem: 6
Výtah: ano
Balkon: ano
Sklep: ano
 
číslo zakázky: 1056071024
ID reality:443400

Kontaktujte mě

Zakázka: [1056071024 ] byt 4+1 nebo větší, Ostrava, Moravská Ostrava, prodej ( Kč )



Petr Šrámek

partner kanceláře a makléř